Imagine 58

DOMDIDIER VILLA V

Domdidier
CHF 1'150'000.-
Description
Nouvelle promotion – Villas individuelles contemporaines, Un cadre résidentiel privilégié

Nous avons le plaisir de vous présenter une nouvelle promotion de villas individuelles contemporaines, conçues pour offrir un équilibre parfait entre confort moderne, fonctionnalité et qualité constructive.
Implantées dans un environnement résidentiel calme et verdoyant, ces habitations bénéficient d’une situation privilégiée, idéale pour les familles recherchant tranquillité, intimité et proximité des commodités.
Chaque villa a été pensée comme une unité totalement indépendante, sans mur mitoyen, garantissant une parfaite autonomie structurelle, une excellente isolation acoustique et une valorisation patrimoniale durable.

Une architecture contemporaine et intemporelle, Le projet se distingue par une architecture sobre et élégante, caractérisée par :

- Des lignes épurées
- Des volumes équilibrés
- Une conception compacte optimisée énergétiquement
- De larges ouvertures favorisant la lumière naturelle

Les façades bénéficient d’une isolation thermique performante et d’une finition soignée, assurant à la fois durabilité et esthétique contemporaine. Les villas développent deux niveaux hors sol et offrent une organisation intérieure fluide et rationnelle, adaptée aux exigences de la vie familiale moderne.

Des villas 5.5 pièces parfaitement agencées. Chaque villa propose environ 5.5 pièces réparties sur deux niveaux.

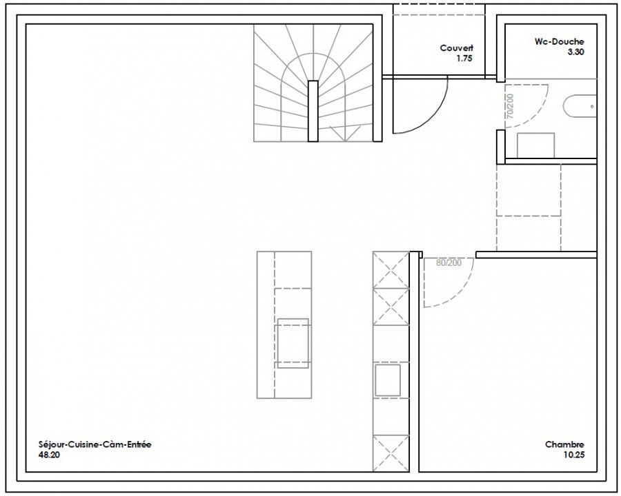
Rez-de-chaussée – Un espace de vie généreux et lumineux

Le rez-de-chaussée accueille un vaste espace ouvert regroupant :
- Hall d’entrée
- Chambre-Bureau
- Cuisine ouverte
- Salle à manger
- Séjour

Cet espace principal d’environ 52 m² constitue le cœur de la maison. Les grandes baies vitrées assurent une connexion directe avec la terrasse et le jardin privatif, créant une continuité naturelle entre intérieur et extérieur. L’organisation ouverte favorise la convivialité tout en permettant un aménagement flexible selon les préférences des futurs propriétaires.

Le rez-de-chaussée comprend également :
- Un WC visiteurs
- Un réduit/local technique pratique pour le rangement

Les matériaux et finitions ont été sélectionnés pour offrir un rendu moderne et durable :
- Carrelage au sol
- Murs en crépis fin
- Plafonds lisses peints

Étage – L’espace nuit confortable et fonctionnel. L’étage est dédié à l’espace nuit et se compose de :
- Une chambre parentale avec espace dressing intégré
- Deux chambres supplémentaires aux surfaces confortables
- Une salle de bains familiale
- Une salle d’eau avec douche et WC
- Une galerie de distribution optimisée

La chambre parentale constitue un véritable espace privé, intégrant un dressing fonctionnel et bénéficiant d’une luminosité naturelle généreuse.

Les chambres secondaires conviennent parfaitement à des enfants, un bureau ou une chambre d’amis.

Les salles d’eau sont conçues avec des équipements contemporains :
- Douche extra-plate
- Baignoire
- WC suspendus
- Meubles vasques modernes
- Les chambres sont revêtues de parquet, apportant chaleur et confort.

Construction et qualité technique

La promotion repose sur des standards de construction élevés :
- Fondations et dalles en béton armé
- Murs porteurs en maçonnerie et béton
- Cloisons légères intérieures

Enveloppe :
- Isolation thermique périphérique performante
- Menuiseries à haute performance énergétique
- Toiture plate isolée avec étanchéité multicouche

L’absence de mur mitoyen améliore significativement le confort acoustique.

Performance énergétique et confort

La conception compacte du bâtiment permet :
- Une réduction des pertes énergétiques
- Une optimisation des charges de chauffage
- Un confort thermique stable été comme hiver

Le chauffage est assuré par un système à haute efficacité énergétique, avec distribution par chauffage au sol basse température.

La ventilation des locaux sanitaires est conforme aux normes en vigueur.

Des extérieurs privatifs, Chaque villa bénéficie :
- D’un jardin privatif
- D’une terrasse de plain-pied
- De places de stationnement privatives
- D’un accès indépendant

Les espaces extérieurs prolongent naturellement l’espace de vie et permettent un usage familial confortable.

Un investissement pérenne, Cette promotion s’adresse aussi bien :
- Aux familles en quête d’un logement durable
- Aux acquéreurs recherchant indépendance et qualité
- Aux investisseurs souhaitant un bien valorisable

Les villas individuelles offrent une meilleure autonomie structurelle et une valorisation patrimoniale plus élevée que des constructions mitoyennes.

Les points forts du projet

✔ Villas totalement indépendantes
✔ 4.5 pièces sur deux niveaux
✔ Grand séjour ouvert de plus de 50 m²
✔ Suite parentale avec dressing
✔ Deux salles d’eau
✔ Jardin privatif
✔ Architecture contemporaine
✔ Construction de qualité
✔ Excellente performance énergétique

Conclusion :

Cette nouvelle promotion représente une opportunité rare d’acquérir une villa individuelle contemporaine, conçue avec rigueur et souci du détail. Fonctionnalité, qualité constructive, indépendance et confort moderne s’unissent pour proposer un cadre de vie durable et valorisant.
Caractéristiques
  • Ref:P31413
  • Pièce(s):5.5
  • Chambre(s):4
  • WC`s:1
Localisation
First Immobilier
Obtenir plus d’informations sur ce bien
Recommendation
Imagine 1618
4 VILLAS à DOMDIDIER LOT I à IV
Domdidier CHF 990'000.-
5.5