Imagine 58

Domdidier

DOMDIDIER : 5 VILLAS INDIVIDUELLES, 3 APPARTEMENTS

Description
Une promotion pensée pour le confort et l’indépendance.
Cette nouvelle promotion propose un ensemble de villas individuelles contemporaines conçues pour répondre aux exigences actuelles en matière de confort, d’efficacité énergétique et de qualité de vie.

Le projet met l’accent sur :

- L’indépendance des habitations
- La fonctionnalité des espaces
- La performance thermique
- La valorisation patrimoniale

Chaque villa bénéficie d’un jardin privatif et d’une conception architecturale moderne, offrant un cadre de vie agréable et durable. La promotion s’inscrit dans une démarche qualitative, tant sur le plan constructif qu’esthétique, garantissant un investissement sûr et pérenne.


Nouvelle promotion – Villas individuelles contemporaines
Un cadre résidentiel privilégié

Nous avons le plaisir de vous présenter une nouvelle promotion de villas individuelles contemporaines, conçues pour offrir un équilibre parfait entre confort moderne, fonctionnalité et qualité constructive. Implantées dans un environnement résidentiel calme et verdoyant, ces habitations bénéficient d’une situation privilégiée, idéale pour les familles recherchant tranquillité, intimité et proximité des commodités. Chaque villa a été pensée comme une unité totalement indépendante, sans mur mitoyen, garantissant une parfaite autonomie structurelle, une excellente isolation acoustique et une valorisation patrimoniale durable.



Une architecture contemporaine et intemporelle

Le projet se distingue par une architecture sobre et élégante, caractérisée par :

- Des lignes épurées
- Des volumes équilibrés
- Une conception compacte optimisée énergétiquement.
- De larges ouvertures favorisant la lumière naturelle.

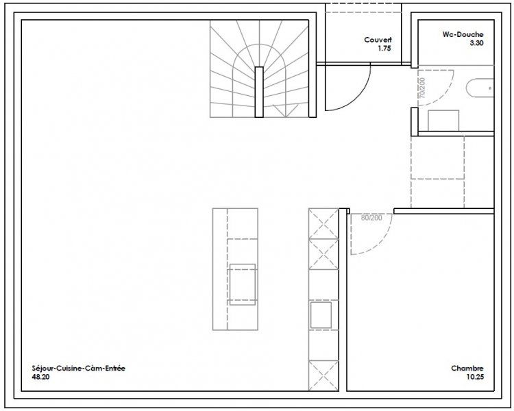
Les façades bénéficient d’une isolation thermique performante et d’une finition soignée, assurant à la fois durabilité et esthétique contemporaine. Les villas développent deux niveaux hors sol et offrent une organisation intérieure fluide et rationnelle, adaptée aux exigences de la vie familiale moderne.
Oferte disponibile
Imagine 359
4 VILLAS à DOMDIDIER LOT I à IV
Domdidier CHF 990'000.-
5.5
Imagine 360
DOMDIDIER VILLA V
Domdidier CHF 1'150'000.-
5.5