Descriptif
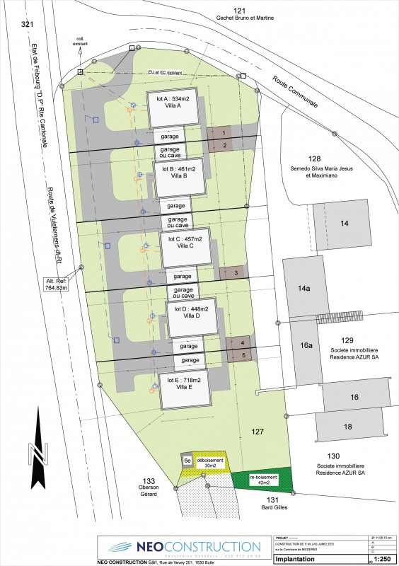
Lotissement de 5 villas de 4½ pièces réalisées sur 3 niveaux, avec possibilité de créer un appartement de 1½ pièce possédant une entrée indépendante.
Villa A : CHF 605'000.-
Villa B : CHF 590'000.-
Villa C : CHF 590'000.- (VENDUE)
Villa D : CHF 590'000.- (VENDUE)
Villa E : CHF 635'000.- (VENDUE)
DISTRIBUTION
Rez :
- hall d'entrée
- séjour / cuisine ouverte
- terrasse
- WC / lavabo
Etage :
- hall de distribution
- 3 chambres à coucher
- suite parentale avec salle de bains attenante (CHF 5'000.-)
- 1 salle de bain commune
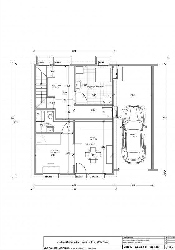
Sous-sol :
- hall de distribution
- buanderie / local technique
- 2 disponibles
- garage
Options en plus-value :
- appartement de 1,5 pièce CHF 40'000.-
- place de parking supplémentaire CHF 5'000.-
- poêle y compris canal de sortie en toiture CHF 10'000.-
Aménagement extérieur :
- parking
- terrasse
- jardin
- terrain engazonné
- espace aménageable
Le permis de construire étant en notre possession, votre future villa peut être livrée dans les 9 mois depuis le début du chantier.
Achat sur plans, possibilité de modifier les espaces intérieurs. Finitions au choix de l’acquéreur dans des budgets définis. Descriptif complet à disposition sur demande.
Budgets :
- carrelage : CHF 40.-/m²
- cuisine : CHF 20'000.-
- sanitaire : CHF 10'000.-
Divers :
- stores électriques au rez
- spots lumineux
- triple vitrage
- isolation de 18cm
- pompe à chaleur air-eau avec chauffage au sol
- aménagements extérieurs
Villa A : CHF 605'000.-
Villa B : CHF 590'000.-
Villa C : CHF 590'000.- (VENDUE)
Villa D : CHF 590'000.- (VENDUE)
Villa E : CHF 635'000.- (VENDUE)
DISTRIBUTION
Rez :
- hall d'entrée
- séjour / cuisine ouverte
- terrasse
- WC / lavabo
Etage :
- hall de distribution
- 3 chambres à coucher
- suite parentale avec salle de bains attenante (CHF 5'000.-)
- 1 salle de bain commune
Sous-sol :
- hall de distribution
- buanderie / local technique
- 2 disponibles
- garage
Options en plus-value :
- appartement de 1,5 pièce CHF 40'000.-
- place de parking supplémentaire CHF 5'000.-
- poêle y compris canal de sortie en toiture CHF 10'000.-
Aménagement extérieur :
- parking
- terrasse
- jardin
- terrain engazonné
- espace aménageable
Le permis de construire étant en notre possession, votre future villa peut être livrée dans les 9 mois depuis le début du chantier.
Achat sur plans, possibilité de modifier les espaces intérieurs. Finitions au choix de l’acquéreur dans des budgets définis. Descriptif complet à disposition sur demande.
Budgets :
- carrelage : CHF 40.-/m²
- cuisine : CHF 20'000.-
- sanitaire : CHF 10'000.-
Divers :
- stores électriques au rez
- spots lumineux
- triple vitrage
- isolation de 18cm
- pompe à chaleur air-eau avec chauffage au sol
- aménagements extérieurs
Commodités
| Vue | Exposition | Divers | Environnement | Proximité |
|---|---|---|---|---|
| Vue | Sud | Poêle | Campagne | Ecoles |
| Magnifique | Ouest | Cuisine agencée | Village | Commerces |
| Verdure | Centre-ville | |||
| Transports publics | ||||
| Autoroute | ||||
